Главный портал недвижимости города Азова и Азовского района.
Только проверенные объявления о продаже квартир, домов и земельных участков, аренда квартир и домовладений.
 
Объявления
Новостройки города
Контакты
О проекте
Вопросы риэлтору
Вопросы адвокату

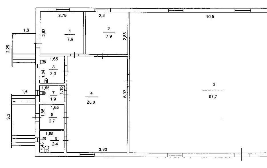
Дом 148.5 м² на участке 6 сот.
  • Площадь дома: 148.5 м²
  • Площадь участка: 6 сот.
  • Расстояние до города: в черте города
  • Материал стен: экспериментальные материалы
  • Вид объекта: дома
  • Этажей в доме: 1

Отличное предложение для вашего бизнеса! Продается здание – 148,5 м2 , на участке в собственности - 600 м2 (ИЖС). Здание постройки 2009 года, строил для себя: стены из блоков с утеплением и обшитые металлопрофилем. Окна - стеклопластик. Подключены все коммуникации, установлены счётчики, центральная канализация. Планировка без несущих внутренних перегородок: большая гостиная, несколько санузлов, просторный холл, кухня с настенным отопительным газовым котлом. В доме есть все, чтобы жить в нём и при желании организовать свой бизнес! Не сложно перевести в нежилой фонд и использовать под магазин, небольшой медицинский центр, аптеку или офис. Прекрасно подойдёт для организации: банкетов, солярия, SPA салона, массажного кабинета, парикмахерской, небольшой стоматологической клиники и т.п. Удобный заезд во двор с местом для стоянки автомобилей. Прямая продажа от собственника! Подойдёт под ипотеку или материнский капитал.

5 600 000 руб.
8 928 627-64-32
Ольга
Номер объявления:
П-18092